Рейтинг@Mail.ru

Услуги



Наши партнеры




Главная » WILO » COMFORT » CO-/COR-MVI.../CC » COR-6 » Установка Wilo-Comfort COR-6MVI5203/CC
Версия для печати Версия для печати

Установка Wilo-Comfort COR-6MVI5203/CC

Артикул:  2524987
!Цена не актуальна!

Оценить

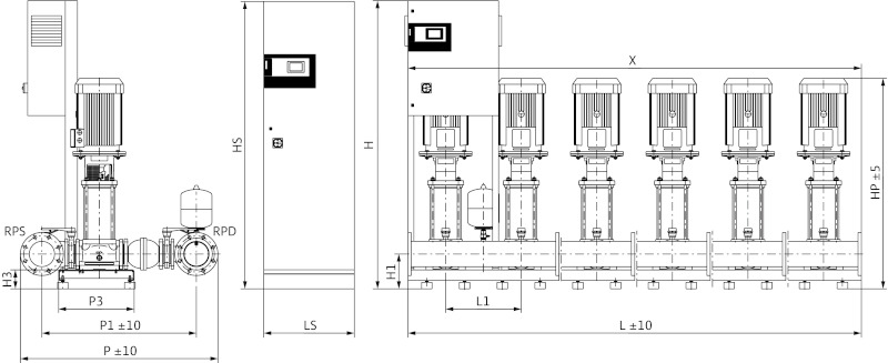
Установка повышения давления Wilo-Comfort COR-6MVI5203/CC с 2–6 параллельно включенными, нормальновсасывающими высоконапорными центробежными насосами из нержавеющей стали

Применение:
- Полностью автоматическое водоснабжение и повышение давления в жилых, офисных и административных зданиях, гостиницах, больницах, торговых комплексах и различных промышленных объектах
- Перекачивание питьевой и технической воды, охлаждающей воды, воды для пожаротушения и т. д., которая ни химически, ни механические не разрушает используемые материалы и не содержит абразивных и длинноволокнистых включений
 
Обозначение Wilo-Comfort COR-6MVI5203/CC:
CO - Компактная установка повышения давления
R - Регулирование соответствующего главного насоса посредством
частотного преобразователя
6 - Число насосов
MVI - Серия насосов
52 - Номинальный объемный расход одинарного насоса [м3/ч]
03 - Число секций одинарного насоса
CC - Блок регулирования; CC = контроллер Comfort

Особенности / преимущества Wilo-Comfort:
- Комфортабельная система с высоконапорными центробежными насосами из нержавеющей стали серии MVI, отвечающими всем требованиям нормы DIN 1988
- 2-6 параллельно подключенных вертикальных высоконапорных центробежных насосов серии MVI со стандартными моторами IEC
- Комфортабельный прибор управления/регулирования „CC“, с программируемым управлением через микропроцессор и работающим в графическом режиме сенсорным дисплеем, с вводом рабочих параметров через меню; при использовании установок COR с частотными преобразователями для регулирования частоты вращения основного насоса
- Установки, отвечающие требованиям заказчика, по заказу

Оснащение/функции:
- 2-6 насосов серии MVI на установку
- Автоматическое управление насосами через CC?контроллер
- Детали, находящиеся в контакте с перекачиваемой жидкостью, устойчивы к коррозии
- Фундаментная рама оцинкована с регулируемыми по высоте вибропоглощающими опорами, обеспечивающими изоляцию корпусного шума
- Шаровой запорный кран редуктора /кольцевая задвижка на стороне всасывания и с напорной стороны каждого насоса
- Обратный клапан с напорной стороны
- Мембранный напорный бак 8 л, PN16, с напорной стороны
- Датчик давления со стороны отводящего трубопровода
- Манометр со стороны подводящего трубопровода, приобретается опционально
- Манометр со стороны отводящего трубопровода
- Предохранитель, срабатывающий при недостатке воды, приобретается опционально

Описание/конструкция:
- Фундаментная рама: оцинкованная рама с регулируемыми по высоте вибропоглощающими опорами, обеспечивающими хорошую изоляцию корпусного шума; другие исполнения по запросу
- Система трубопроводов: полная система трубопроводов из нержавеющей стали 1.4571, применяемая для подсоединения трубопроводов из любых материалов, используемых в оборудовании для зданий и сооружений; система трубопроводов рассчитана в соответствии с общей гидравлической мощностью установки повышения давления
- Насосы: применяется от 2 до 6 параллельно включенных насосов серии MVI 2 – MVI 95; все части этих насосов, контактирующие с перекачиваемой жидкостью, из нержавеющей стали 1.4301 или 1.4301 или, соответственно, начиная от MVI 16.. из серого чугуна; катафорезное покрытие или, соответственно, нержавеющая сталь 1.4408 по запросу
- Арматура: каждый насос со всасывающей и напорной сторон имеет шаровую запорную арматуру из CuZn с никелевым покрытием и знаком технического контроля DVGW или кольцевые задвижки и обратный клапан с напорной стороны из материала POM с допуском DVGW в корпусе из CuZn/1.4408
- Мембранный напорный бак: 8 л/PN 16, расположен со стороны конечного давления, с мембраной из бутилового каучука, отвечающей требованиям закона о безопасности пищевых продуктов; в целях осмотра и проверки оснащен запорным шаровым краном из CuZn с никелевым покрытием, системой опорожнения и арматурой расхода согласно DIN 4807
- Датчик давления: от 4 до 20 мА, расположен со стороны конечного давления для задействования центрального Comfort-контроллера
- Индикация давления: со стороны подводящего и отводящего трубопроводов через манометр (o 63 мм); дополнительная цифровая индикация конечного давления на буквенно-цифровом сенсорном дисплее Comfort-контроллера.
- Прибор управления/регулятор: в серийном исполнении установка оснащается контроллером Comfort CC; COR дополнительно с частотным преобразователем

Материалы:
MVI 1.. до 16..-6
- Рабочие колеса и секции из нержавеющей стали 1.4301/1.4404 (MVI 16..?6 только из 1.4301)
- Корпус насоса из нержавеющей стали 1.4301/1.4404
- Вал из нержавеющей стали 1.4301/1.4404
- Уплотнение EPDM (EP 851)/FKM (Viton)
- Крышка корпуса из нержавеющей стали 1.4301/1.4404
- Нижняя часть корпуса из нержавеющей стали 1.4301/1.4404
- Скользящее торцевое уплотнение из графита/карбида вольфрама, SiC/графита
- Напорный кожух из нержавеющей стали 1.4301/1.4404
- Подшипники из карбида вольфрама
- Основание насоса EN?GJL?250
- Система трубопроводов из нержавеющей стали 1.4571
MVI 16.. – 95..
- Рабочие колеса из нержавеющей стали 1.4301/1.4404
- Секции из нержавеющей стали 1.4301/1.4404
- Корпус насоса EN-GJL-250/1.4404
- Вал из нержавеющей стали 1.4057/1.4404
- Уплотнение EPDM (EP 851)/FKM (Viton)
- Крышка корпуса из нержавеющей стали 1.4301/1.4404
- Нижняя часть корпуса из нержавеющей стали 1.4301/1.4404
- Скользящее торцевое уплотнение из графита/карбида вольфрама, SiC/графита
- Напорный кожух из нержавеющей стали 1.4301/1.4404
- Подшипники из карбида вольфрама
- Система трубопроводов из нержавеющей стали 1.4571

Технические характеристики:
Тип - Wilo-Comfort COR-6MVI5203/CC    
Артикул - 2524987
Частота вращения - 2850 об/мин
Макс. температура перекачиваемых сред - 70 °C
Температура окружающей среды, макс. - 40 °C
Рабочее давление Pmax - 16 бар
Входное давление Pmax - 10 бар
Номинальные внутренние диаметры трубы на стороне всасывания - DN 150
Номинальные внутренние диаметры трубы с напорной стороны     - DN 150
Подключение к сети - 3~400 В, 50 Гц
Номинальная мощность мотора P2 - 7.5000 кВт
Номинальный ток 3~400 В, 50 Гц IN - 13.60 A
Степень защиты - IP 54
Число секций - 3

Другое:
Вес - 1540 кг
Длина - 2600 мм
Ширина - 2150 мм
Высота - 2100 мм
EAN/UPC код - 4016322833703

Есть вопросы?

Вы можете задать нам вопрос(ы) с помощью следующей формы.

Имя:

Email

Пожалуйста, сформулируйте Ваши вопросы относительно Установка Wilo-Comfort COR-6MVI5203/CC:


Введите число, изображенное на рисунке
code