Рейтинг@Mail.ru

Услуги



Наши партнеры




Главная » WILO » Economy » CO-1 Helix V.../CE+ » CO-1HELIX V16../K/CE-01 » Установка Wilo-Economy CO-1HELIX V1605/K/CE-01
Версия для печати Версия для печати

Установка Wilo-Economy CO-1HELIX V1605/K/CE-01

Артикул:  2532189
!Цена не актуальна!

Оценить


Высокоэффективная, готовая к подключению установка Wilo-Economy CO-1HELIX V1605/K/CE-01 для водоснабжения

С многоступенчатым высоконапорным центробежным насосом из нержавеющей стали вертикального исполнения с сухим ротором, включая регулятор Economy CE+.

Применение:
- полностью автоматическое водоснабжение при подаче воды из сети центрального водоснабжения или накопительного резервуара.
 Перекачивание питьевой и технической воды, охлаждающей воды, воды для пожаротушения (за исключением установок пожаротушения согласно DIN14462) и других технических нужд, которая ни химически, ни механически не разрушает используемые материалы и не содержит абразивных и длинноволокнистых включений
 
Обозначение Wilo-Economy CO-1HELIX V1605/K/CE-01:
CO - Компактная установка повышения давления
1 - Число насосов
Helix V - Серия насосов
16 - Номинальный объемный расход одинарного насоса [м3/ч]
05 - Число секций одинарного насоса
K - Со скользящими торцевыми уплотнениями в виде картриджа
CE+ - Блок регулирования; CE+ = регулятор Economy для Helix

Особенности / преимущества Wilo-Economy CO-1HELIX V:
- Надежность системы за счет использования высоконапорных центробежных насосов из нержавеющей стали серии Helix V
- Высокоэффективная гидравлика насоса в сочетании со стандартными моторами IE2
- Простота настройки и надежность в работе за счет использования прибора управления CE+
- Установки, отвечающие требованиям заказчика, по заказу

Оснащение/функции:
- Автоматическая система управления насосом с регулятором CE+
- 1 насос серии Helix V со стандартным мотором IE2
- Детали, контактирующие с перекачиваемой средой, устойчивы к воздействию коррозии
- Фундаментная рама из оцинкованной стали с регулируемыми по высоте вибропоглощающими опорами, обеспечивающими хорошую изоляцию корпусного шума
- Запорная заслонка, напорная сторона
- Обратный клапан, напорная сторона
- Мембранный напорный бак 8 л, PN16, напорная сторона
- Датчик давления, напорная сторона
- Манометр, напорная сторона
- В качестве опции с защитой от сухого хода (WMS) с манометром, всасывающая сторона

Описание/конструкция:
- Фундаментная рама: оцинкованная сталь, с регулируемыми по высоте вибропоглощающими опорами, обеспечивающими хорошую изоляцию корпусного шума; другие исполнения по запросу
- Система трубопроводов: все трубопроводы из нержавеющей стали 1.4571, для подсоединения трубопроводов из любых материалов; система трубопроводов рассчитана в соответствии с общей гидравлической мощностью установки повышения давления
- Насосы: 1 насос серии от Helix VE 4 до Helix VE 52; все детали, контактирующие с перекачиваемой средой, выполнены для серий Helix V 4 ? Helix V 16 из нержавеющей стали, для серий Helix V 22 ? Helix V 52 – из нержавеющей стали/серого чугуна с покрытием KTL; Другие исполнения по запросу Допуск KTW/WRAS/ACS для всех деталей, контактирующих с перекачиваемой средой.
- Арматура: В сериях Helix V 22, V 36 и V 52 каждый насос с напорной стороны оснащен шаровым запорным краном редуктора из латуни/хромированной латуни со знаком технического контроля DVGW или запорным клапаном из серого чугуна/нержавеющей стали 316 со знаком технического контроля DVGW, а также обратным клапаном с напорной стороны из бронзы/латуни с допуском KTW в чугунном корпусе с эпоксидным покрытием. В серии Helix V 4 ? V 16 насос с напорной стороны оснащен шаровым запорным краном редуктора из латуни/хромированной латуни со знаком технического контроля DVGW и обратным клапаном с напорной стороны из материала POM с допуском DVGW/KTW в корпусе из CuZn.
- Мембранный напорный бак: 8 л/PN16 расположен со стороны конечного давления, с мембраной из бутилового каучука, с допуском DVGW/KTW, отвечающий требованиям закона о безопасности пищевых продуктов в целях осмотра и проверки, с системой опорожнения и арматурой расхода с допуском DVGW/KTW согласно DIN 4807
- Датчик давления: От 4 до 20 мА, расположен со стороны конечного давления для задействования центрального регулятора CE+.
- Индикация давления: манометр (o 63 мм) расположен на стороне конечного давления; дополнительная цифровая индикация конечного давления на буквенно-цифровом сенсорном дисплее контроллера Comfort
- Прибор управления/регулятор: в серийном исполнении установка оснащена регулятором CE+

Материалы CO-1HELIX V1605/K/CE-01:
Helix V 4 ? V 16
  - Рабочие колеса, ведущие колеса, ступенчатый корпус из нержавеющей стали 1.4307
  - Корпус насоса из нержавеющей стали 1.4301
  - Вал из нержавеющей стали 1.4057
  - 1.4404 защитная втулка вала
  - Уплотнительное кольцо из EPDM (уплотнение FKM по запросу)
  - Система трубопроводов из нержавеющей стали 1.4571
Helix V 22 ? Helix V 52
  - Рабочие колеса, ведущие колеса, ступенчатый корпус из нержавеющей стали 1.4307
  - Корпус насоса из серого чугуна EN-GJL 250 с покрытием KTL
  - Вал из нержавеющей стали 1.4057
  - 1.4404 защитная втулка вала
  - Уплотнительное кольцо из EPDM (уплотнение FKM по запросу)
  - Система трубопроводов из нержавеющей стали 1.4571

Объем поставки:
- Монтируемая на заводе-изготовителе, проверенная на безотказность работы и герметичность, готовая к подключению установка повышения давления
- Упаковка
- Инструкция по монтажу и эксплуатации

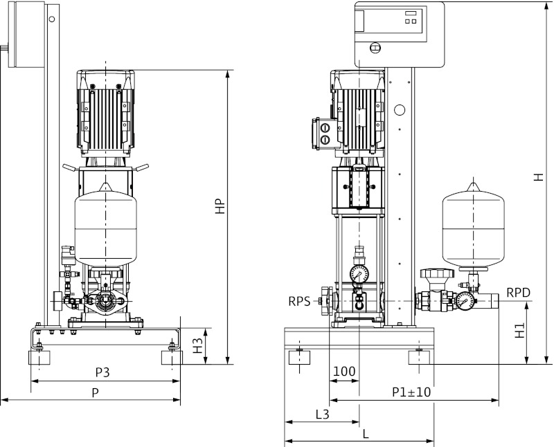
Технические характеристики:
Тип - Wilo-Economy CO-1HELIX V1605/K/CE-01
Артикул - 2532189
Частота вращения - 2900 об/мин
Подключение к сети - 3~230/400 В, 50 Гц
Макс. температура перекачиваемых сред - 60 °C
Температура окружающей среды, макс. - 40 °C
Номинальная мощность мотора P2 - 4 кВт
Номинальный ток 3~230 В, 50 Гц IN - 13.50 A
Номинальный ток 3~400 В, 50 Гц IN - 7.80 A
Номинальные внутренние диаметры трубы - Rp 2
Рабочее давление - 16 бар
Степень защиты - IP 54

Другое:
Вес - 100 кг
Длина - 720 мм
Ширина - 620 мм
Высота - 1220 мм
EAN/UPC код - 4048482087344

Есть вопросы?

Вы можете задать нам вопрос(ы) с помощью следующей формы.

Имя:

Email

Пожалуйста, сформулируйте Ваши вопросы относительно Установка Wilo-Economy CO-1HELIX V1605/K/CE-01:


Введите число, изображенное на рисунке
code